Our Process
Building a Wine Cellar
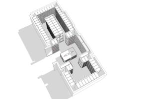
3D Concept
Visualising a Design
The creation of a wine room depends on understanding the personality of the owner and the character of their wine. If bottle, colour, shape and size are the cast, then it is the connoisseur, collector, investor or entertainer who directs the Smith & Taylor design. It is then down to the design team and the workshop to translate this understanding into a finished wine room that reflects the owner’s passion and individuality.











